Villa singola in vendita

Aprilia, Via Terminillo - Vallelata Nord
€ 379.000
480 Mq 480 Mq
5 bagni 5 bagni

Villa singola in vendita

Aprilia, Via Terminillo - Vallelata Nord

Descrizione annuncio

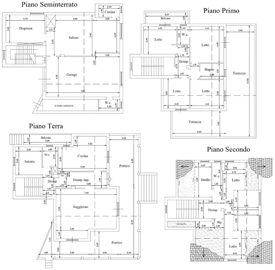
Villa singola posizionata in contesti poco distanti dal centro città, vicina ai servizi e scuole primarie.

La soluzione si trova su un lotto di oltre 1000 mq e si struttura su più livelli.

Il piano terra accede da un ampio portico di ingresso, salone, cucina abitabile, camera da letto e bagno.

Al 1°piano troviamo 4 camere da letto con uscite sul terrazzo che le circonda ed un bagno.

Al 2°piano, che rimane in parte mansardato, abbiamo 3 stanze ed il bagno.

Al piano seminterrato una comoda sala hobby con camino e cucina, vano finestrato ed un comodo box auto.

I piani sono collegati tra di loro da una comoda scala in legno.

L'immobile presenta internamente pavimentazione in parquet presente in tutta casa e gran parte degli infissi con il doppio vetro.

Visionabile tutti i giorni previo appuntamento.

Mostra tutto

Nelle vicinanze

Trasporto pubblico Trasporto pubblico
stazione di Aprilia
stazione di Aprilia
2,1 Km
Aprilia
Aprilia
2,1 Km
Trasporto pubblico
880 m
Aprilia Belvedere
Aprilia Belvedere
1,6 Km
Scuole Scuole
Scuola dell'Infanzia e Primaria "Bellavista"
230 m
Scuola dell'Infanzia "Luigi Pirandello"
1,1 Km
Scuola Media A. Gramsci
2,1 Km
Istituto Comprensivo "Giovanni Pascoli"
2,2 Km
Istituto Comprensivo "Giacomo Matteotti"
2,3 Km
Farmacia Farmacia
Napolitano
2,2 Km
Ospedali Ospedali
San Michele Hospital
2,2 Km
Casa di Cura Città di Aprilia
2,4 Km
Ospedali
2,4 Km
Supermercati Supermercati
Supermercati
1,7 Km
Eurospin
1,8 Km
Iper Coop
2,7 Km
EuroSpin
3,0 Km
Pam
3,0 Km
Negozi Negozi
Conbipel
3,0 Km
Ristoranti Ristoranti
Tavole calde
2,6 Km
Mostra tutto

Caratteristiche

Rif.:
61180852
Piano:
Su più livelli di 3
Totale piani:
3
Box:
1
Terrazzi:
1
Camere da letto:
9
Mostra tutto
Prezzo Prezzo
€ 379.000
Rata mutuo Rata mutuo
€ 1.787 / mese
Proponi il tuo prezzoProponi il tuo prezzo

Classe Energetica

G
G
G
G
G
G
G
G
G
EP globale non rinnovabile:
97.00 kW h/m² anno
EP globale rinnovabile:
48.00 kW h/m² anno
EP invernale del fabbricato:
EP estiva del fabbricato:
Anno di costruzione:
1982
Riscaldamento:
Autonomo
Tipo impianto:
A radiatori
Tipo alimentazione:
Metano

Ti interessa visionare l'immobile?

Fissa un appuntamento  Fissa un appuntamento

Richiedi informazioni

Clicca su Leggi per aprire l'informativa
* Questi campi sono obbligatori

Calcola il tuo mutuo

Semplice e senza impegno
Anticipo

( % )
Mutuo

( % )

pochi semplici passi

inserisci i tuoi dati
Questionario completato
Grazie per aver richiesto un appuntamento senza impegno con un nostro Consulente del Credito e Assicurativo.

Hai inserito correttamente tutti i dati necessari e a breve riceverai una e-mail con un link da convalidare per inviare i tuoi dati.
Affiliato
Nuova Aprilia Immobiliare Srl
Via Arturo Toscanini, 34 04011 Aprilia (LT)
Via Arturo Toscanini, 34 04011 Aprilia (LT)
Zona: Toscanini-Montarelli-Vallelata-Fossignano-Riserva Nuova-Casalazzara-La Cogna
Mostra su mappa
Orari: DA LUNEDI AL SABATO: MATTINA DALLE 08.30 ALLE 13.00 - POMERIGGIO DALLE 15.30 ALLE 19.00
Affiliato
Nuova Aprilia Immobiliare Srl
Via Arturo Toscanini, 34 04011 Aprilia (LT)

2026 Tecnocasa Franchising S.p.A. - P. IVA 08365160152 - Via Monte Bianco 60/A 20089 Rozzano (MI). Ogni agenzia ha un proprio titolare ed è autonoma. Privacy policy | Policy utilizzo | Cookie policy