Trilocale in vendita

Aprilia, Via Primavera - La Cogna
€ 149.000
3 locali 3 locali
103 Mq 103 Mq
1 bagno 1 bagno

Trilocale in vendita

Aprilia, Via Primavera - La Cogna

Descrizione annuncio

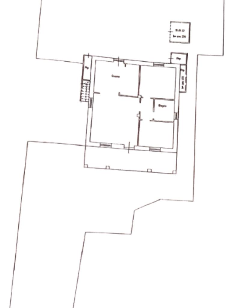
Piano terra con ingresso indipendente anche carrabile sul giardino privato di 800 mq che circonda l'immobile.

Salone con cucina abitabile a vista per totali 55 mq, 2 camere da letto ed un bagno.

Terrazzo di 83 mq con accesso diretto dalla cucina con forno in muratura.

L'immobile gode di 3 comodi ripostigli esterni e si presenta internamente in ottimo stato in quanto ristrutturato esternamente nel 2025, ed internamente nel 2020.

Visionabile tutti i giorni previo appuntamento.

Mostra tutto

Nelle vicinanze

Scuole Scuole
Scuola dell'Infanzia e Primaria "Leonardo da Vinci"
2,7 Km
Ristoranti Ristoranti
La Sorgente
2,4 Km
Mostra tutto

Caratteristiche

Rif.:
61152812
Piano:
Terra con giardino di 3
Totale piani:
3
Posti auto:
3
Terrazzi:
1
Camere da letto:
2
Mostra tutto
Prezzo Prezzo
€ 149.000
Rata mutuo Rata mutuo
€ 702 / mese
Spese annue Spese annue
€ 0
Proponi il tuo prezzoProponi il tuo prezzo

Classe Energetica

F
F
F
F
F
F
F
F
F
EP invernale del fabbricato:
EP estiva del fabbricato:
Anno di costruzione:
1970
Riscaldamento:
Autonomo
Tipo impianto:
A radiatori
Tipo alimentazione:
Metano

Ti interessa visionare l'immobile?

Fissa un appuntamento  Fissa un appuntamento

Richiedi informazioni

Clicca su Leggi per aprire l'informativa
* Questi campi sono obbligatori

Calcola il tuo mutuo

Semplice e senza impegno
Anticipo

( % )
Mutuo

( % )

pochi semplici passi

inserisci i tuoi dati
Questionario completato
Grazie per aver richiesto un appuntamento senza impegno con un nostro Consulente del Credito e Assicurativo.

Hai inserito correttamente tutti i dati necessari e a breve riceverai una e-mail con un link da convalidare per inviare i tuoi dati.
Affiliato
Nuova Aprilia Immobiliare Srl
Via Arturo Toscanini, 34 04011 Aprilia (LT)
Via Arturo Toscanini, 34 04011 Aprilia (LT)
Zona: Toscanini-Montarelli-Vallelata-Fossignano-Riserva Nuova-Casalazzara-La Cogna
Mostra su mappa
Orari: DA LUNEDI AL SABATO: MATTINA DALLE 08.30 ALLE 13.00 - POMERIGGIO DALLE 15.30 ALLE 19.00
Affiliato
Nuova Aprilia Immobiliare Srl
Via Arturo Toscanini, 34 04011 Aprilia (LT)

2026 Tecnocasa Franchising S.p.A. - P. IVA 08365160152 - Via Monte Bianco 60/A 20089 Rozzano (MI). Ogni agenzia ha un proprio titolare ed è autonoma. Privacy policy | Policy utilizzo | Cookie policy